LD - ESTRATTORE ARIA - ASPIRATORE - VENTOLA DA PARETE SILENZIOSA
disponible
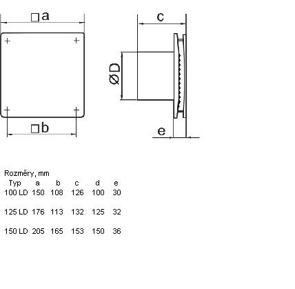
Morue. LD100
Producteur: VENTS - VENTILATION SYSTEM
Prix standard
€21,97 TVA incluse(22%)
disponible
Morue. LD125
Producteur: VENTS - VENTILATION SYSTEM
Prix standard
€26,45 TVA incluse(22%)
disponible
Morue. LD150
Producteur: VENTS - VENTILATION SYSTEM
Prix standard
€42,05 TVA incluse(22%)
Aspiratori ed Estrattori da Parete Serie LD
Garantire un corretto ricambio d'aria è fondamentale per la salute degli ambienti e delle persone. La gamma di estrattori d'aria da parete selezionata da Indoorline offre soluzioni versatili per ogni esigenza di ventilazione. Che si tratti di un bagno cieco, di una cucina soggetta a vapori o di una grow room indoor, i modelli della serie LD e LDTH assicurano silenziosità e performance elevate.
Perché scegliere la ventilazione Indoorline?
Tutti i nostri aspiratori sono realizzati in plastica ABS di alta qualità, resistente all'ingiallimento causato dai raggi UV e agli urti. Il motore, progettato per il funzionamento continuo, garantisce un bassissimo consumo elettrico e un comfort acustico superiore.

recalculer...